2 szobás 49 m2-es Lakás Rózsakert Lakópark - Tatabánya

49 M Ft
  • Ingatlan adatok
  • Alapterület: 49 m2
  • Regisztrációs szám: P4448-2-0A-01-005
  • Szobák: 2 szoba
  • Típus: Lakás
  • Ár: 49 000 000 Ft
  • Várható átadás: 2025. III. negyedév
  • Emelet: 1. emelet
  • Méret (bruttó): 48.78 m2
  • Erkély méret: 7.47 m2
  • Fűtés: Házközponti (egyedi méréssel)
  • Fürdőszobák száma: 1
  • Belmagasság: 270.0 cm
  • Tároló: Külön vásárolható
  • Tájolás: É
  • Garázs: Külön vásárolható
  • Kilátás: utcai
  • Lépcsőház jellege: zárt lépcsőházas
  • FIX 3% hitelre alkalmas: Igen

Leírás

Projekt bemutatása

Újonnan épülő, Rózsakert Lakóparkban kínálunk megvételre lakásokat, garázsokat, tárolókat, parkoló helyeket, Tatabánya kertvárosias területén, 2025. Augusztusi átadással!

Telek mellett és mögött zöldterület található.
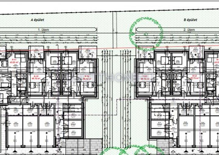
A telekre 2 db épület lett tervezve, melynek alaprajzi kialakítása megegyező, kivitelezése 2 ütemben tervezett.
Megközelítése egy bejáratról történik, az épületek előtt és mellett felszíni parkolók kerülnek elhelyezésre.

A földszinten épületenként 1-1 db garázs, tárolók, gépészeti helyiség, és 4-4 db nagyobb méretű kertkapcsolattal rendelkező lakás tervezett.
Az 1 emeleten 5-5 db közepes és kisebb alapterületű lakás, a 2. emeleten 3-3 lakás tetőterasszal.
Összesen 12-12 db lakás kerül kialakításra az épületekben, a parkoláshoz 2db garázs és 24 db felszíni parkoló készül.
A lakások mérete változatos, készül 1-1 garzon, nappali+ 1 hálószobás, nappali+ 2 szobás. ( Itt egyedileg egyeztetve lehetőség van egyes lakásoknál plusz szoba kialakítására is)
Mindegyik lakás erkéllyel vagy terasszal rendelkezik.
Fűtésük épületenként központi gázkazánnal tervezett, padlófűtéssel, melyek úgy kerülnek kivitelezésre, hogy az energiafelhasználás a lehető legkisebb mértékű legyen.
Nyílászárók műanyagok lesznek.

Szerkezetük:
Falazata Leiertherm N+F vázkerámia falazóblokkból, válaszfalak 10cm-es Leiertherm 10/50 N+F válaszfaltéglából készülnek.
Az épületekre 15 cm külső szigetelés , a talajon fekvő padlószerkezetbe 10cm lépésálló hőszigetelés, a koszorúk bennmaradó zsaluzatként 5 cm előtét hőszigetelés kerül.
Zárófödémre minimum 25 cm ásványgyapot hőszigetelés tervezett.


Részletesebb műszaki leírás rendelkezésre áll, melyet megtekintés során az érdeklődőknek bemutatok.

Amennyiben felkeltette érdeklődését, további információért illetve megtekintéssel kapcsolatban várom hívását.

Rózsakert Lakópark

Átadás:
2025. III. negyedév
Lakások száma:
11
Árak:
45 - 69 M Ft
Méret:
30 - 63 m2
Szobák:
1 - 3 szoba
Projekt bemutatása
Érdeklődöm