4 szobás 117 m2-es Családi ház Családbarát környezet, forgalom mentes övezet! - Debrecen, Hatvan utcai kert
- Ingatlan adatok
-
Alapterület: 117 m2
-
Regisztrációs szám: 160930
-
Szobák: 4 szoba
-
Típus: Családi ház
-
Ár: 118 990 000 Ft
-
Várható átadás: 2023. II. negyedév
-
Telek méret: 220 m2
-
Fűtés: gáz (cirko)
-
Belmagasság: 270.0 cm
-
Tároló: Önálló
-
Garázs: Benne van az árban
-
Kilátás: zöld kerti
-
Lépcsőház jellege: zárt lépcsőházas
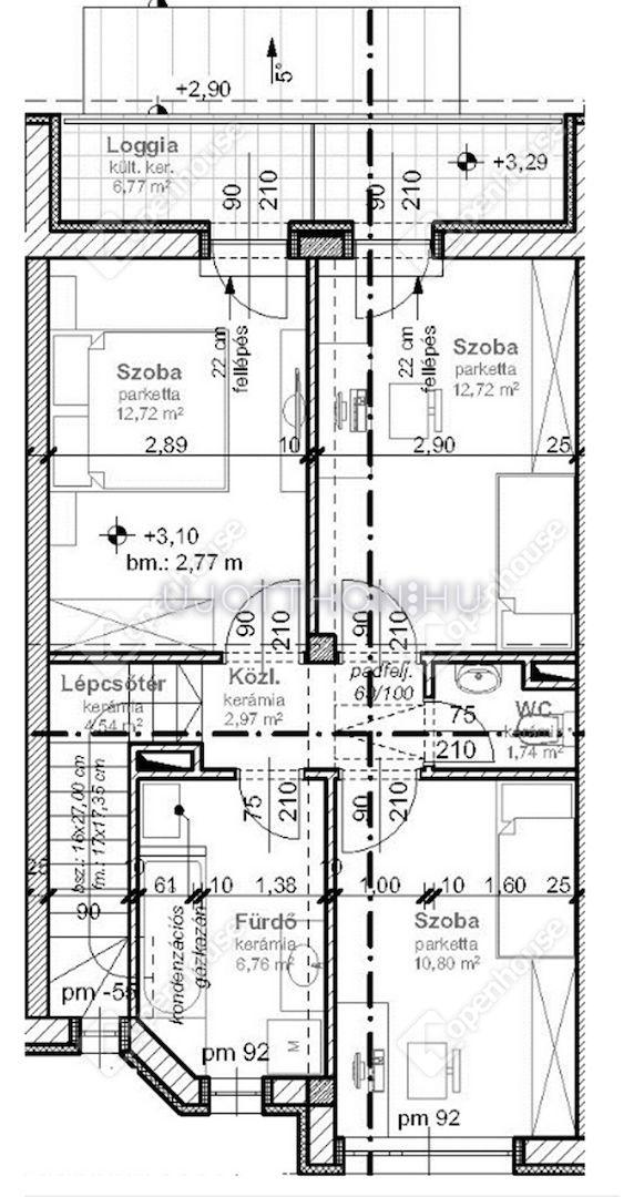
- Helyiségek
-
Nappali 16.70 m2
-
Konyha 6.50 m2
-
Étkező 8.60 m2
-
Előtér 6.30 m2
-
WC 1.50 m2
-
Szoba 13.00 m2
-
Szoba 13.00 m2
-
Szoba 11.00 m2
-
Fürdő 7.00 m2
-
WC 2.00 m2
-
Közlekedő 3.00 m2
-
Lépcsőház 4.00 m2
Leírás
Debrecenben a Hatvan utcai kertben magas műszaki tartalommal épülő sorházi lakás leköthető.
OPENHOUSE Debrecen, Hadházi út 1-3. számú irodája eladásra kínálja a 160929 - es számú sorházat.
- A SORHÁZI LAKÁS családbarát környezetben forgalom mentes övezetben épül
- A lakás kulcsra készen kerül átadásra 2023. tavaszán.
- 5 különböző stílus közül lehet választani, de a lakások mindegyik azonos, magas műszaki tartalommal épül.
- A SORHÁZI LAKÁS 117 nm -es, 2 szintes
- Az alsó szinten van kialakítva a nappali-konyha-étkező egysége, melyhez egy 10 nm -es burkolt terasz kapcsolódik, illetve innen jutunk a 210 nm -es önálló kis kertben.
- Ezen szinten található még egy WC kézmosóval. és egy lépcső alatti tároló.
- Az emeleten 3 hálószoba, egy igazán tágas fürdőszoba és egy WC kézmosóval kap helyet.
- A fenti szobák közül kettőhöz egy 10 nm -es loggia kapcsolódik.
- A sorházi lakáshoz önálló, elektromos kapuval ellátott garázs is tartozik.
- A lakás fűtése Viessmann típusú gáz-cirkó rendszerrel történik.
- A fürdőszobában Ariel kád, Villeroy&Boch kézmosó, Hasgrorhe csaptelep, Alföldi KOMBIPACK FORMO fali WC kerül beépítésre.
- A lakás hűtéséről Gree Syen Bora+ extra csendes klíma gondoskodik.
Amennyiben a 160929 - es számú SORHÁZI LAKÁS felkeltette érdeklődését kérem, hívjon a fent megadott telefonszámon.
Irodánkban bankfüggetlen hitelügyintézéssel állunk ügyfeleink rendelkezésére.
˝Az ingatlan és az otthon közötti út élményéért dolgozunk.˝
Projekt bemutatása
Debrecenben a Hatvan utcai kertben a megszokott magas műszaki tartalommal és megbízható kivitelezéssel SORHÁZI LAKÁSOK épülnek.
OPENHOUSE Debrecen, Hadházi út 1-3. szám alatti irodájában új építésű sorházi LAKÁSOK leköthetők.
- A SORHÁZI LAKÁSOK 117 nm - esek és 2023. tavaszán kulcsrakészen kerülnek átadásra.
- 5 különböző stílusú lakás közül lehet válsztani, mindegyik magas műszaki tartalommal rendelkezik
- A LAKÁSOK mindegyike Viesmann típusú egyedi gáz-cirkó fűtési rendszerrel rendelkezik
- A hűtésről Gree Syen Bora+ klíma gondoskodik majd
- A HÁZ helyiségei magas minőségű hidegburkolattal illetve Egger pro parkettával lesz burkolva (9-12 000.-/nm)
- Fürdőszobai felszereltség:
- Ariel kád, Villroy&Boch kézmosó, Hansgorhe csaptelepek, Alföldi KOMBIPACK FORMO fali WC-k
- A LAKÁSOK mindegyikéhez 210 nm -es kert, és különálló garázs tartozik
- A LAKÁSOK tervezése, kialakítása igazodik a mai elvárásokhoz:
- Az alsó szinten található az egy légtérben kialakított nappali-konyha-étkező egysége, melyhez egy 10 nm - es burkolt terasz kapcsolódik
- Ezen a szinten kerül kialakításra egy WC, kézmosóval és kisebb lépcső alatti tároló
- Az emeleten 3 hálószoba, egy igazán tágas fürdőszoba, és külön helyiségben WC kézmosóval lesz kialakítva
- Az emeleti hálószobákból kettőhöz egy 7 nm - es loggia kapcsolódik
- A LAKÁSOKRA támogatott CSOK hitel és CSOK igényelhető
Amennyiben új építésű lakást, sorházat szeretne vásárolni kérem, hívjon a fent megadott telefonszámon.
Irodánkban bankfüggetlen hitelügyintézéssel állunk ügyfeleink rendelkezésére.
˝Az ingatlan és az otthon közötti út élményéért dolgozunk.˝
Családbarát környezet, forgalom mentes övezet!