3 szobás 56 m2-es Lakás Budai Walzer IV. ütem - Budapest XI. kerület, Szerenád u

110.87 M Ft
  • Ingatlan adatok
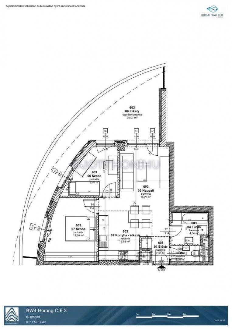
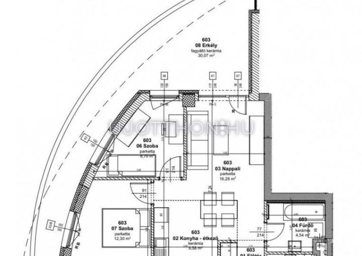
  • Alapterület: 56 m2
  • Regisztrációs szám: 10434540
  • Szobák: 3 szoba
  • Típus: Lakás
  • Ár: 110 873 000 Ft
  • Várható átadás: 2028. II. negyedév
  • Fűtés: Egyéb

Leírás

A Budai Walzer egyik lakását neked építjük!
Olyan otthonról álmodsz, mely végre nem a kompromisszumokról szól? Ahol minden a Te igényeid és stílusod szerint kerül kialakításra? Ahonnan jó érzés reggelente útnak indulni és ahová boldogító hazatérni? Amelyben hosszú távon is fantáziát látsz? A nappali plusz két hálószobás megoldás számtalan lehetőséget rejt, attól függően, hogyan alakul az életed. Ami az egyik pillanatban dolgozószoba, az a másikban nyugodtan lehet gardrób-, vendég-, játszó- vagy gyerekszoba. Válaszd ki a számodra legszimpatikusabb elrendezést, tájolást, emeletet, és kezdj el képzeletben berendezkedni. Az erkélyt vagy - földszinti lakás esetén - a kertkapcsolatot se hagyd figyelmen kívül!
Elkötelezettek vagyunk egy fenntartható jövő építésében, így minden lakásunk BB energetikai tanúsítvánnyal rendelkezik.

Élvezd a város lüktetését ‒ nyugodt körülmények között!
A parkosított környezetű Budai Walzer alatt teremgarázs húzódik, extra tárolóhelyiségekkel, hogy minden, számodra fontos és értékes felszerelést (szerszámokat, kerékpárokat, sporteszközöket) biztonságban elhelyezhess. Ha útnak indulnál, mert a város kínálta szórakozási lehetőségeknek se szeri, se száma, megteheted autóval, kerékpárral vagy gyalogszerrel is, hisz közel a busz, a villamos, a 4-es metró. Ha a városon kívül töltenéd a szabadidődet, akkor a sztrádák (M0, M1, M7) vagy a Kelenföldi vasútállomás és buszpályaudvar felé vedd az irányt!

Mindent a gyerekekért!
Az épületek egy gépjárműforgalom elől elzárt, sétautakkal és közösségi terekkel tarkított parkban kapnak helyet, ahol a gyerekek szórakozásáról játszóterekkel és sportpályákkal, az anyukák pihenéséről árnyas padokkal gondoskodunk. Ez a nyugodt, biztonságos környezet ideális ahhoz, hogy mozogjunk egyet a friss levegőn vagy a kicsik kerékpárra, rollerre pattanjanak. A környék hosszú sétákra csábít, nem beszélve a hangulatos Duna-partról.
Az itt cseperedő gyerekeket a kerület jó nevű óvodái, állami-, alternatív- és szakiskolái várják. Ez a tény, valamint az egyetemek közelsége (ELTE, BME, Corvinus, SOTE, Ludovika Campus stb.) hosszú távon biztosítja a családok nyugalmát, hiszen így sem a fiataloknak, sem a szülőknek nem kell több órás utazásokat vagy kitérőket belekalkulálniuk a hétköznapjaikba.

Tervezz hosszú távra!
A főváros legvonzóbb kerületében épülő Budai Walzer lakóparkban az oktatási intézmények, bevásárlási lehetőségek, kulturális és sportközpontok, szórakozási lehetőségek, valamint a közlekedési és egészségügyi infrastruktúra rohamos fejlődése következtében egy élményekkel teli, nyugodt életre rendezkedhetsz be, és megtalálod azt a harmóniát, amiről a városban nem is álmodtál.

További részletekért látogass el a www.budaiwalzer.hu honlapra vagy hívd értékesítőinket.

Budai Walzer. Mestermű, melyet a természet komponált tökéletesre.

Projekt bemutatása


A 11. kerület Duna-parthoz közeli, csaknem 9 hektáros, varázslatos része új életre kelt, de nem a megszokott módon! A Budai Walzer egy olyan koncepció jegyében épül, mely teret enged az alkotó fantáziának, sokoldalú, élhető, szerethető, inspiratív közeget teremt az ott lakók számára. Mindezt úgy, hogy számos ponton összefonódik a természettel, és az épített környezet dominanciája helyett harmóniára törekszik.

Találd meg a számodra ideális lakást a negyedik ütemben épülő házak, 25-85 nm közötti kínálatából, de ha adhatunk egy tippet mindjárt a legelején, nyugodtan tervezz hosszú távra! A legmagasabb minőségi elvárásoknak is megfelelő, változatos elrendezésű és tájolású, kertkapcsolatos, erkélyes vagy tetőteraszos lakásokban megleled azt a harmóniát, amelyről a városban nem is álmodtál!

Hatalmas parkok, közösségi terek, játszóterek, forgalomtól elzárt sétautak övezik az épületeket, így házon kívül is biztosított a feltöltődés és a nyugalom. Az itt lakók kényelmét tovább fokozza a terveink között szereplő, kisebb üzlethelyiségeket és boltokat felsorakoztató szolgáltató központ kialakítása.

Elkötelezettek vagyunk egy fenntartható jövő építésében, így minden lakásunk kiváló energetikai tanúsítvánnyal rendelkezik.

Bruttó vételár tartalmazza a mindenkor hatályban lévő általános forgalmi adót (az Áfát).
Az általános forgalmi adó mértékének a fizetési kötelezettség teljesítése alatt történő változása a vételár összegét nem módosítja.

Légy részese egy minden eddiginél élhetőbb városrész születésének! Nagy hangsúlyt fektetünk arra, hogy a lakók nyugalma és zavartalan pihenése a gépjárműforgalom kizárásával (mélygarázsok, sétautak, parkok) biztosított legyen. A környék azonban olyan nagyszabású fejlesztéseken megy keresztül, melyek lehetővé teszik, hogy a lakóparkot elhagyva könnyen bekapcsolódj a város vérkeringésébe. A tömegközlekedés és az úthálózat átalakítása, valamint a tervek között szereplő, Újbudát Csepellel összekötő híd új perspektívákat nyit az itt élők számára. A kerület jó nevű oktatási intézményei, általános, közép- és szakiskolái tárt karokkal várják a fiatalokat.
Az Újbuda Center és a Savoya Park közelsége a bevásárlási lehetőségek tárházát kínálja, de még ezt a pár száz métert sem kell megtennie annak, aki gyalogosan indul bevásárolni, hisz a közeli élelmiszerüzletben is beszerezhet mindent, és még az ínyencségekről sem kell lemondania.

A Duna közelsége és a környékbeli sportlétesítmények azok számára kedveznek, akik aktív életmódra rendezkednek be a Budai Walzerben. A hasonló értékeket valló, életmódot folytató lakók pedig előbb-utóbb egymásra találnak, ezért is törekszünk az első pillanattól kezdve egy olyan élettér kialakítására, ahol az emberi kapcsolatok felértékelődnek, ahol egy összetartó közösségre, barátokra találsz.

Budai Walzer IV. ütem

Átadás:
2028. II. negyedév
Lakások száma:
179
Árak:
63.6 - 169.7 M Ft
Méret:
30 - 85 m2
Szobák:
1 - 4 szoba
Projekt bemutatása
Érdeklődöm