2 szobás 45 m2-es Lakás Budai Walzer IV. ütem - Budapest XI. kerület, Szerenád u

93.87 M Ft
  • Ingatlan adatok
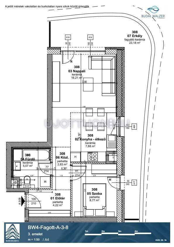
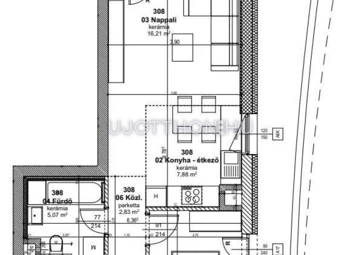
  • Alapterület: 45 m2
  • Regisztrációs szám: 10434397
  • Szobák: 2 szoba
  • Típus: Lakás
  • Ár: 93 871 000 Ft
  • Várható átadás: 2028. II. negyedév
  • Fűtés: Egyéb

Leírás

Szeretnél egy olyan lakást, mely a nyugalom szigete a pörgős hétköznapokban? Melynek minden négyzetmétere a te ízlésedet tükrözi, a te kényelmedet szolgálja és a te boldogságodat jelenti?

A Budai Walzer lakópark kiváló elrendezésű, erkélyes vagy kertkapcsolatos lakásai között szerintünk egy pillanat alatt megtalálod a kedvencedet! Ráadásul nálunk nemcsak egy testhez álló, minőségi kivitelezésű lakásra, hanem egy összetartó lakóközösségre, sőt új barátokra is találhatsz.
A Budai Walzer alatt teremgarázs húzódik, extra tárolóhelyiségekkel, hogy minden, számodra fontos és értékes felszerelést (szerszámokat, kerékpárokat, sporteszközöket) biztonságban elhelyezhess.

Élj harmóniában önmagaddal és a természettel!
A lakópark épületei egy gépjárműforgalom elől elzárt, csodaszép, közösségi terekkel, sportpályákkal tarkított parkban kapnak helyet, mely minden évszakban sétára csábít, a közeli Duna-partról nem is beszélve. Ha a lakás nyugalmában szeretnéd élvezni a napsugarak simogatását, akkor telepedj ki az erkélyre! Ideális hely a reggeli kávé elfogyasztásához, a barátok, családtagok megvendégeléséhez, relaxáláshoz, tanuláshoz, sőt, még akár a home office-t is kiköltöztetheted, ha a természet közelsége, a madárcsicsergés és a lágy szellő inspirálnak a munkában.
Elkötelezettek vagyunk egy fenntartható jövő építésében, így minden lakásunk BB energetikai tanúsítvánnyal rendelkezik.

Budai Walzer ‒ a város szerelmeseinek
A szórakozási lehetőségek szinte házhoz jönnek, a 11. kerület és a szomszédos városrészek kulturális intézményei (Tüske Csarnok, MÜPA, Nemzeti Színház, Bálna) a kikapcsolódás fellegvárai. Ám ha történetesen vásárolni támad kedved, akkor sem kell messzire menned! A közeli üzletekben, a szomszédos bevásárlóközpontban (Etele Plaza, Újbuda Center, Savoya Park, Campona, Allee) vagy a könnyen megközelíthető, kedvelt budaörsi áruházakban megtalálsz mindent, mi szem-szájnak ingere.

Ahol megszűnnek a távolságok...
Ha útnak indulnál, autóval, kerékpárral vagy gyalogszerrel is megteheted, hisz közel a busz, a villamos, a 4-es metró. Ha a városon kívül töltenéd a szabadidődet, akkor a sztrádák (M0, M1, M7) vagy a Kelenföldi vasútállomás és buszpályaudvar felé vedd az irányt!

A főváros legvonzóbb kerületében épülő Budai Walzer lakóparkban a bevásárlási lehetőségek, a kulturális és sportközpontok, a szórakozási lehetőségek, valamint a közlekedési infrastruktúra rohamos fejlődése következtében egy élményekkel teli életre rendezkedhetsz be.

További részletekért látogass el a www.budaiwalzer.hu honlapra vagy hívd értékesítőinket.

Budai Walzer. Mestermű, melyet a természet komponált tökéletesre.

Projekt bemutatása


A 11. kerület Duna-parthoz közeli, csaknem 9 hektáros, varázslatos része új életre kelt, de nem a megszokott módon! A Budai Walzer egy olyan koncepció jegyében épül, mely teret enged az alkotó fantáziának, sokoldalú, élhető, szerethető, inspiratív közeget teremt az ott lakók számára. Mindezt úgy, hogy számos ponton összefonódik a természettel, és az épített környezet dominanciája helyett harmóniára törekszik.

Találd meg a számodra ideális lakást a negyedik ütemben épülő házak, 25-85 nm közötti kínálatából, de ha adhatunk egy tippet mindjárt a legelején, nyugodtan tervezz hosszú távra! A legmagasabb minőségi elvárásoknak is megfelelő, változatos elrendezésű és tájolású, kertkapcsolatos, erkélyes vagy tetőteraszos lakásokban megleled azt a harmóniát, amelyről a városban nem is álmodtál!

Hatalmas parkok, közösségi terek, játszóterek, forgalomtól elzárt sétautak övezik az épületeket, így házon kívül is biztosított a feltöltődés és a nyugalom. Az itt lakók kényelmét tovább fokozza a terveink között szereplő, kisebb üzlethelyiségeket és boltokat felsorakoztató szolgáltató központ kialakítása.

Elkötelezettek vagyunk egy fenntartható jövő építésében, így minden lakásunk kiváló energetikai tanúsítvánnyal rendelkezik.

Bruttó vételár tartalmazza a mindenkor hatályban lévő általános forgalmi adót (az Áfát).
Az általános forgalmi adó mértékének a fizetési kötelezettség teljesítése alatt történő változása a vételár összegét nem módosítja.

Légy részese egy minden eddiginél élhetőbb városrész születésének! Nagy hangsúlyt fektetünk arra, hogy a lakók nyugalma és zavartalan pihenése a gépjárműforgalom kizárásával (mélygarázsok, sétautak, parkok) biztosított legyen. A környék azonban olyan nagyszabású fejlesztéseken megy keresztül, melyek lehetővé teszik, hogy a lakóparkot elhagyva könnyen bekapcsolódj a város vérkeringésébe. A tömegközlekedés és az úthálózat átalakítása, valamint a tervek között szereplő, Újbudát Csepellel összekötő híd új perspektívákat nyit az itt élők számára. A kerület jó nevű oktatási intézményei, általános, közép- és szakiskolái tárt karokkal várják a fiatalokat.
Az Újbuda Center és a Savoya Park közelsége a bevásárlási lehetőségek tárházát kínálja, de még ezt a pár száz métert sem kell megtennie annak, aki gyalogosan indul bevásárolni, hisz a közeli élelmiszerüzletben is beszerezhet mindent, és még az ínyencségekről sem kell lemondania.

A Duna közelsége és a környékbeli sportlétesítmények azok számára kedveznek, akik aktív életmódra rendezkednek be a Budai Walzerben. A hasonló értékeket valló, életmódot folytató lakók pedig előbb-utóbb egymásra találnak, ezért is törekszünk az első pillanattól kezdve egy olyan élettér kialakítására, ahol az emberi kapcsolatok felértékelődnek, ahol egy összetartó közösségre, barátokra találsz.

Budai Walzer IV. ütem

Átadás:
2028. II. negyedév
Lakások száma:
198
Árak:
61.5 - 166.8 M Ft
Méret:
30 - 86 m2
Szobák:
1 - 4 szoba
Projekt bemutatása
Érdeklődöm