2 + 1 félszobás 63 m2-es Lakás Kálvária Residence - Budapest VIII. kerület, Józsefváros, Kálvária utca 16

79.9 M Ft
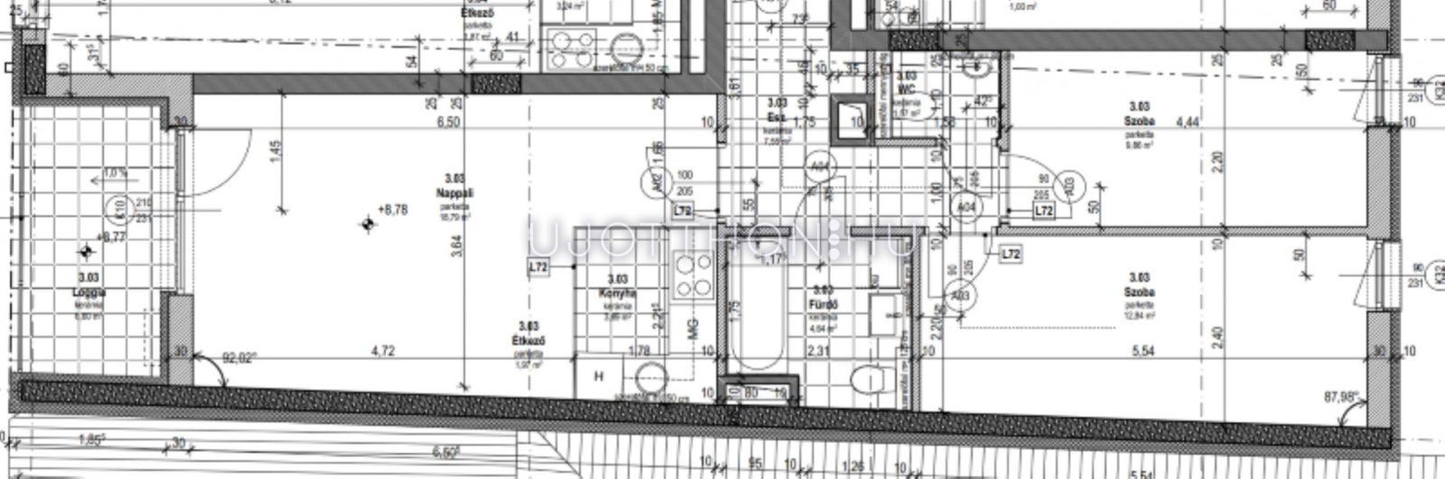
  • Ingatlan adatok
  • Alapterület: 63 m2
  • Regisztrációs szám: 9847767
  • Szobák: 2 + 1 félszoba
  • Típus: Lakás
  • Ár: 79 900 000 Ft
  • Várható átadás: 2023. IV. negyedév
  • Emelet: 3. emelet
  • Fűtés: Házközponti (egyedi méréssel)
  • Lift: Van
  • FIX 3% hitelre alkalmas: Igen

Leírás

A VIII. kerület REHABILITÁCIÓS részén, a Kálvária-Kőris utca sarkán épülő 3 szobás, erkélyes ( 63 m2+6,6 m2 erkély) 3.emeleti, kertre néző lakás eladó!

A lakás 90%-os készültségi fokon áll, szerződéskötéskor a vételár 90%-át kell kiegyenlíteni.

Projekt bemutatása


AZONNAL KÖLTÖZHETŐ LAKÁSOK KÖZVETLENÜL A BERUHÁZÓTÓL!

A Kálvária Ház a VIII. kerület kedvelt, a Klinikák és a Nagyvárad téri metróállomások közötti területen helyezkedik el.

A Kálvária Ház elsősorban a kiváló infrastruktúrát és az alacsony üzemeltetési, fenntartási költségeket kedvelőknek kínál otthonteremtési lehetőséget.

Az épületben 27, 31, 41, 46, 64, 68, 72 és 80 négyzetméteres – 1, 2, 3 valamint 4 szobás lakásokat alakítottunk ki.

Energetikai besorolás: B

Kálvária Residence

Átadás:
2023. IV. negyedév
Lakások száma:
3
Árak:
67 - 109.9 M Ft
Méret:
47 - 79 m2
Szobák:
2 - 4 szoba
Projekt bemutatása
Érdeklődöm